Projects

Our comprehensive project management makes the development process more efficient and worry-free.

Completed

Wellington Point

Land subdivision: 1 into 4 lots

LAND ACQUISITION / DA / CIVIL WORKS / TITLE REGISTRATION

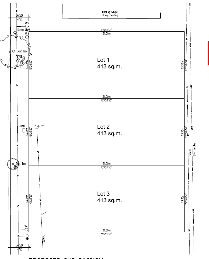
Ormiston

Land subdivision: 3 into 12 lots

LAND ACQUISITION / DA

Underwood

Apartment project: 33 units

LAND ACQUISITION / DA ADJUSTMENT

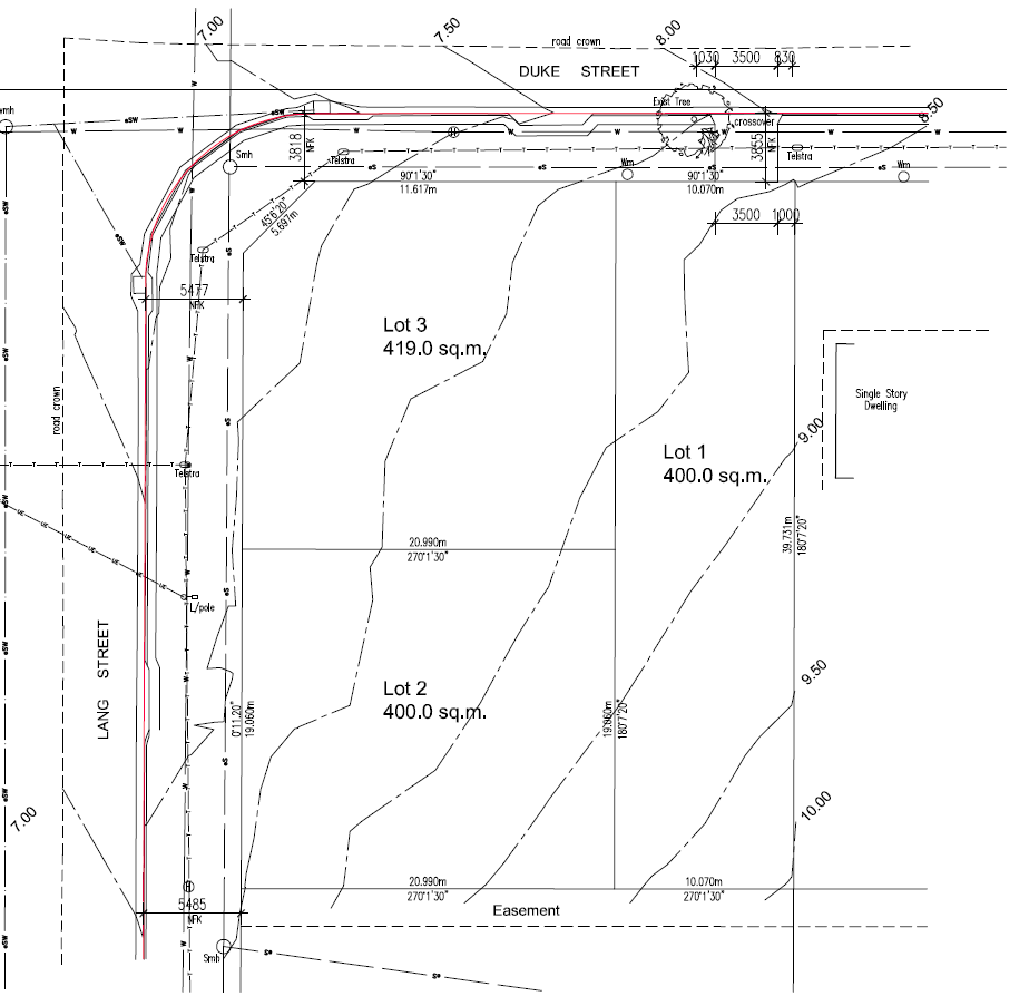
Annerley

Land subdivision: 1 into 2 lots

LAND ACQUISITION / DA / CIVIL WORKS / TITLE REGISTRATION

Camp Hill

Land subdivision: 1 into 2 lots

LAND ACQUISITION / DA / CIVIL WORKS / TITLE REGISTRATION

Camp Hill

Land subdivision: 1 into 2 lots

LAND ACQUISITION / DA / CIVIL WORKS / TITLE REGISTRATION

Upper Mount Gravatt

Land subdivision: 1 into 2 lots

LAND ACQUISITION / DA / CIVIL WORKS / TITLE REGISTRATION

Wynnum

Land subdivision: 1 into 2 lots

LAND ACQUISITION / DA / CIVIL WORKS / TITLE REGISTRATION

Corinda

Land subdivision: 1 into 2 lots

LAND ACQUISITION / DA / CIVIL WORKS / TITLE REGISTRATION

Carindale

Land subdivision: 2 into 3 lots

LAND ACQUISITION / DA / CIVIL WORKS / TITLE REGISTRATION

Cannon Hill

Land subdivision: 2 into 3 lots

LAND ACQUISITION / DA / CIVIL WORKS / TITLE REGISTRATION

Toowong

Land subdivision: 1 into 2 lots

LAND ACQUISITION / DA / CIVIL WORKS / TITLE REGISTRATION

Upper Mount Gravatt

Land subdivision: 1 into 2 lots

LAND ACQUISITION / DA / CIVIL WORKS / TITLE REGISTRATION

Ongoing

Macgregor

Apartment project: 8 units

DA

Rochedale South

Land subdivision: 1 into 3 lots

DA

Rochedale South

Apartment project: Units + Retail + Digital Billboard

DA

Sunnybank

Land subdivision: 1 into 2 lots

DA

Sunnybank Hills

Land subdivision: 1 into 2 lots

CIVIL WORKS

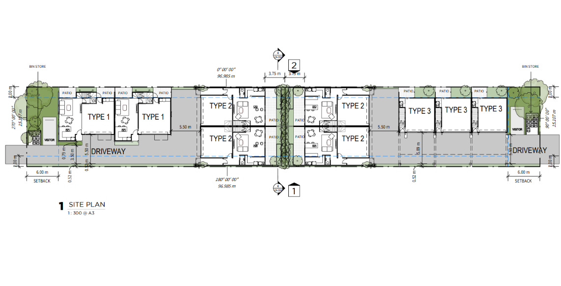
Carina

Townhouse project: 9 lots

LAND ACQUISITION / DA / BUILDING DESIGN MANAGEMENT

Ashgrove

Land subdivision: 1 into 3 lots

CIVIL WORKS / TITLE REGISTRATION

Wishart

Land subdivision: 1 into 5 lots + design & construction of 5 detached houses

LAND ACQUISITION / DA / CIVIL WORKS / TITLE REGISTRATION / DESIGN & CONSTRUCTION MANAGEMENT

Ellen Grove

Land subdivision: 1 into 18 lots

LAND ACQUISITION / DA / CIVIL WORKS / TITLE REGISTRATION

×